今回ご紹介するのは、築48年の木造2階建て住宅の耐震改修リフォーム事例です。施主の方は中古住宅を購入されましたが、敷地が狭く、趣味である大切な単車を保管するスペースがありませんでした。また、建物は旧耐震時代に建てられた住宅であり、経年劣化も見られることから、「地震が来たときに本当に大丈夫なのだろうか」という不安も感じておられました。
そこで今回は、耐震改修によって建物の安全性を高めると同時に、単車を保管できるスペースを確保するリフォームを計画することになりました。
調査の結果、この建物は旧耐震基準の築古住宅であり、各所に劣化が見られました。しかし柱や梁などの軸組自体は比較的しっかりしており、適切な補強を行えば耐震性能を向上させることができると判断しました。
そこで、外部に面している和室の一部を改修し、単車を保管できる外部スペース(単車置き場)へ変更する計画としました。
物件概要
| 所在地 | 兵庫県神戸市兵庫区 |
| 構造 | 木造在来工法 |
| 階数 | 2階建 |
| 築年数 | 昭和52年 |
| 延床面積 | 約90㎡ |
| 改修目的 | 地震への不安解消、単車置き場が欲しい |
現地調査
調査内容
✅ 内外部の劣化状況
✅ 床下状況
✅ 小屋裏・天井裏状況
✅ 基礎配筋確認
✅ 間取り、開口部の位置、大きさ
調査状況
耐震診断結果
この現地調査の結果を「日本建築防災協会」による“木造住宅の耐震診断と補強方法(一般診断)”に準じて耐震診断を行いました。診断ソフトは、「ホームズ君耐震診断Pro」を使用しています。
建物概要と状況

地盤・床下・基礎形式・柱頭柱脚接合部・筋かい接合部
- 地盤に関して
建物には大きな傾きは無く、健全な地盤と判断します。 - 床下に関して
床下に関してですが、キッチン床点検口より状況を確認しました。乾燥状況は少々、湿気を感じましたが、目視できる範囲では、土台・柱には蟻害、腐食はありませんが、今後のことを考えて、白蟻がつかないうちに、防蟻工事をされることをお勧めします。 - 基礎に関して
布基礎でコンクリート状況は大きな問題無し。鉄筋探査機にて鉄筋の有無確認したが、鉄筋は確認できません。 - 天井裏、小屋裏に関して
天井裏、小屋裏に関してですが、全体的に、良好で小屋組全体はしっかりしています。しかしながら、筋違いは確認できず、柱頭には接合金物は付いていません。

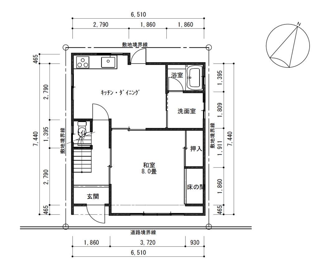
現況図
■ 1階平面図

劣化状況 所見
- 外壁、軒裏に関して
全体的に大きなひび割れが多数あります。補修はしてありますが、その補修が劣化して、再度、ひび割れが発生しています。ひび割れを放置し、その部分から内部に水が浸入すると柱・梁・土台の構造材が腐食して、強度・耐久性が低下し、地震がきた際、破損・倒壊の原因となりますので、早目の補修をお勧めします。 - 屋根・樋に関して
屋根は、日本瓦葺きです。土が載っているかどうか判りませんが、安全をみて土葺きとしています。樋は、塗装がめくれ劣化が進行しています。部分的に垂れているところがあり、勾配が変わっています。大雨の際、オーバーフローして、それが漏水の原因となりますので、補修されることをお勧めします。 - 内部の状況に関して
浴室、便所の壁タイルにひび割れ、隙間が見られます。補修はされていますが、すでに内部に水が浸入し、土台・柱が腐食している可能性もあります。 - 和室の柱に関して
数か所、レーザーレベルにより傾きを測定しましたが大きな傾きはありません。 - 間取りに関して
南側に大きな掃き出し窓が設置されており、東西方向に開口が多い状況です。
劣化状況をまとめると以下の通りです。

上部構造評点
これらの状況をもとに、国土交通省監修の『木造住宅の耐震診断と補強方法(一般診断)』に基づいて耐震診断を行いました。その結果、評点は0.24となり、大地震が発生した場合に「倒壊する可能性が高い」という結果が得られました。
これは、柱頭・柱脚に接合金物が設置されていないこと、南北方向に開口が多いこと、特に1階の玄関・和室の外壁通りに開口が大きく、壁量が不足していることが原因です。この部分が、大地震が発生した際に最も危険な個所となります。2階部分においても、若干、強度が不足しています。

総合評価

計画策定
この耐震診断結果に基づいて耐震補強計画を進めていきます。今回は、単車置き場をつくりますので、この段階でその計画も組み込みます。
改修方針
具体的な補強方法として、
- 耐力壁の設置
- 鉄筋コンクリート造基礎の新設
- 屋根の軽量化
- 劣化改善
を行う。具体的には、以下の通りです。
① 耐力壁の設置
- 最も危険な部分が1階の玄関・和室の通りに面する外壁面で、車庫置き場をつくるので、その部分を重点的に耐力壁を設置する。
② 鉄筋コンクリート造基礎の新設
- 外壁面が新しくできるため、その部分に鉄筋コンクリート造基礎を新設する。
③ 屋根の軽量化
- 現在は、土葺き瓦のため、スレート葺きに葺き替え建物の屋根の軽量化をはかる。
④ 劣化改善
- 外壁全体的にひび割れがあるので、その部分をVカットし、防水剤を注入し塗装する。
- 樋が劣化しているため、やり替える。
- バルコニーの防水をやり替える。
- 浴室廻りの取り合い部分、タイル目地コーキングをやり替える。
このようにすることにより、評点は、1.0以上となり、大地震の際に一応倒壊しない安全な家となります。
改修計画図
■ 1階平面図

計画策定結果
その結果評点は、以下の通りです。現況評点0.25から1.15まで評点があがり、「大地震がきても倒壊しない」というレベルになります。


耐震改修工事
ここでは、改修工事の実際を工事ごとに順を追って紹介します。
① 耐力壁の設置
- 耐力壁の仕様、位置が図面通りかチェック
- 接合金物が図面通りに設置されていか、ビスなどしっかりと留まっているのかチェック
- 構造用合板の仕様が適切か、釘の種類、打ち方、間隔は適切かチェック
- 筋違いのサイズ、向きが図面通りかチェック
② 鉄筋コンクリート造基礎の新設
- 基礎の深さ、幅が図面通りか
- 栗石、砕石は十分に転圧しているか
- 配筋は図面通りか、定着・継手は十分にあるか
- 基礎コンクリートの厚さ・高さは図面とおりか






③ 屋根の軽量化
- 解体後の野地板は腐食していないか
- 屋根下地合板の貼り方は適切か
- 防水シートの重ねは十分にあるか
- スレートの釘の打ち方は適切か



④ 劣化改善
- 外壁ひび割れのVカットの深さ・幅は適切か
- 防水剤・コンクリート材料は適切か、施工状況に問題ないか






費用と工期
■ 費用
| 内容 | 金額(消費税込み) |
|---|---|
| 調査費 | 5万円 |
| 耐震改修設計費 | 30万円 |
| 耐震リフォーム工事 | 615万円 |
| 工事監理費(報告書作成費含) | 10万円 |
| 合 計 | 660万円 |
■ 工期:約1ヶ月


